Trong những năm gần đây, tropical house hay còn gọi là nhà phong cách nhiệt đới – trở thành xu hướng thiết kế được nhiều gia chủ yêu thích tại Việt Nam. Với ưu điểm nổi bật là sự kết hợp hài hòa giữa thiên nhiên và không gian sống, tropical house mang đến cảm giác thư giãn như đang nghỉ dưỡng tại resort mỗi ngày.
Bài viết dưới đây sẽ giới thiệu chi tiết về mẫu thiết kế tropical house 4 phòng ngủ, từ phối cảnh tổng thể, mặt bằng công năng, nội thất sang trọng cho đến chi phí xây dựng thực tế. Nếu bạn đang tìm kiếm một không gian sống mát lành, tiện nghi và đầy chất thơ, đừng bỏ qua mẫu nhà tropical house này.
Phối Cảnh Căn Nhà Phong Cách Tropical House
Để gây ấn tượng ngay từ ánh nhìn đầu tiên, kiến trúc sư ưu tiên hình khối đơn giản, mái bằng rộng và các khoảng đua ban‑công lớn. Màu tường trắng kem kết hợp lam gỗ chống nắng giúp giảm bức xạ nhiệt, trong khi tấm lam treo cây leo tạo hiệu ứng “rừng treo” giúp điều hòa không khí tự nhiên. Bể cá koi viền chân tường phản chiếu ánh sáng, đồng thời làm dịu vi khí hậu quanh nhà. Hệ cửa kính trượt sát trần rộng 2,4 m mở ra tầm nhìn vườn xanh, kết nối trong‑ngoài liền mạch yếu tố không thể thiếu cho phong cách nhiệt đới.

Thiết Kế Cảnh Quan Mẫu Nhà Tropical House
Thiết kế cảnh quan lấy cảm hứng từ khu nghỉ dưỡng Bali với ba lớp xanh:
-
Tầng tán cao: Dừa cảnh, cau Hawaii tạo vòm lọc nắng.
-
Tầng trung: Chuối rẻ quạt, trúc quân tử cho sắc lá lớn, đậm chất tropical.
-
Tầng phủ mặt đất: Cỏ lông heo, dương xỉ và rêu đá giữ ẩm, giảm bốc hơi nước.
Lối dạo lát đá ong xếp lệch, len giữa thảm cỏ, dẫn thẳng tới hồ bơi 30 m² phía sau. Kết hợp vòi phun dạng thác nhỏ tạo âm thanh róc rách, tăng trải nghiệm “resort at home”. Hệ thống đèn ngoại thất IP65 ánh sáng 3000 K làm nổi bật mảng xanh về đêm mà không gây chói.

Xem Thêm: 20+ Ngôi Nhà Thiết Kế Theo Phong Cách Nhiệt Đới Tropical Đẹp Không Thể Rời Mắt
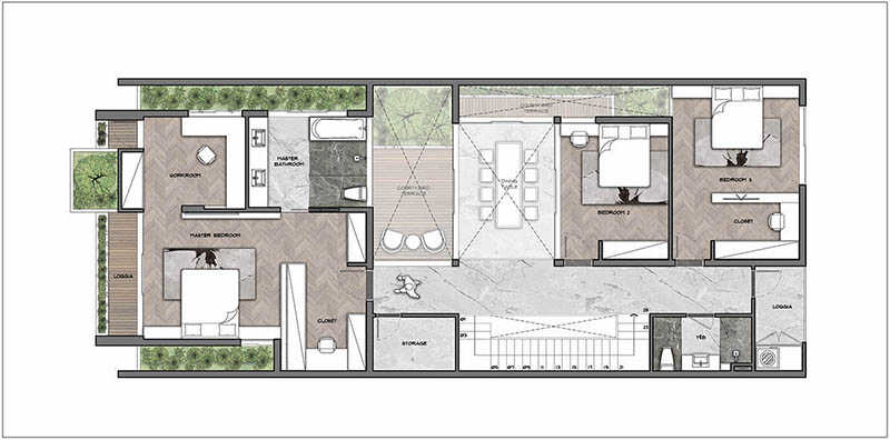
Mặt Bằng Nhà Tropical House 4 Phòng Ngủ
Mặt bằng chia khối rõ ràng, bảo đảm luồng gió xuyên suốt:
| Tầng | Công năng chính | Diện tích (m²) | Ghi chú thông gió |
|---|---|---|---|
| Trệt | Phòng khách, bếp + ăn, 1 phòng ngủ | 160 | Cửa trượt đôi, giếng trời 9 m² |
| Lửng | Thư viện, góc làm việc | 40 | Thông tầng 6 m cao |
| Lầu 1 | 2 phòng ngủ con, phòng sinh hoạt chung | 140 | Hệ lam gỗ & cửa sổ đón gió Đông Nam |
| Lầu 2 | Phòng ngủ master, phòng gym, sân thượng | 120 | Sân vườn trên mái, mái kính Low‑E |

Thiết kế nội thất theo phong cách nhà nhiệt đới
Nội thất ưu tiên vật liệu tự nhiên (gỗ teak, đá ong, mây đan) kết hợp bảng màu đất – cát – lá. Các món décor như gối in lá cọ, đèn mây tre, thảm cói dệt tay mang lại cảm giác nghỉ dưỡng.
Nội thất phòng khách tông nâu
Phòng khách cao 4,5 m đặt bộ sofa chữ L bọc linen nâu café, bàn trà gỗ nguyên tấm 3 cm, chân sắt đen. Trên tường, tranh canvas chủ đề lá monstera cỡ lớn kết hợp quạt trần gỗ cánh dài 1,5 m giúp lưu thông gió. Sàn lát gỗ kỹ thuật bản lớn 1,2 m x 20 cm, phủ dầu lau tự nhiên hạn chế hóa chất.

Nội thất phòng bếp bằng gỗ hiện đại
Tủ bếp chữ U dùng gỗ sồi trắng phủ veneer teak vân sọc, tay nắm ẩn, cánh vát 45°. Mặt bàn đá thạch anh 20 mm chống bám bẩn; đảo bếp dài 2,6 m tích hợp bếp từ, bồn rửa, ghế bar chân kim loại. Thiết bị “smart kitchen” (lò nướng steam‑assist, máy hút mùi âm bàn) kết nối Wi‑Fi hỗ trợ điều khiển bằng giọng nói giải pháp tiện ích cho chủ nhà bận rộn.

Mẫu phòng ngủ luxury cho gia chủ
Phòng master rộng 45 m², trần ốp gỗ óc chó chạy sọc, giấu đèn LED hắt 3000 K. Giường king bọc da nubuck, tab đầu giường lửng gỗ ash, tủ áo cánh kính fumé kèm đèn led cảm biến. Điểm nhấn là vách đầu giường ốp đá marble Rainforest Brown loang vân, gợi liên tưởng rừng nhiệt đới. Rèm vải linen hai lớp (voan – cản sáng) cho phép cân chỉnh ánh sáng dễ dàng.

Mẫu phòng tắm hiện đại tiện nghi
Phòng tắm chủ sử dụng gạch terrazzo xám nhạt 60 x 120 cm lát liền tường sàn, hạn chế mạch vữa. Buồng tắm kính cường lực 10 mm, sen cây âm trần dạng mưa, chậu đá tự nhiên đặt trên countertop gỗ teak chống nước. Gương LED cảm biến chống đọng hơi, hệ tủ treo giấu máy giặt, máy sấy tối ưu diện tích. Cửa sổ cao 1 m mở ra tiểu cảnh trúc, giúp thoáng và có view xanh thư giãn. Nội thất đồng bộ như thế không chỉ nâng tầm thẩm mỹ mà còn khiến tropical house thật sự “thở”, mang hơi nước, ánh sáng và màu xanh vào từng khoảnh khắc sinh hoạt.

Chi Phí Xây Dựng Cho Mẫu Nhà Tropical House
-
Chi phí xây thô + nhân công (bao gồm móng cọc, kết cấu bê tông cốt thép, tường gạch, mái, hệ thống MEP cơ bản): 5,3 – 5,6 triệu VNĐ/m².
-
Chi phí hoàn thiện ngoại thất (đá, sơn chống thấm, lan can kính, lam gỗ, cảnh quan) ước tính 1,4 triệu VNĐ/m².
-
Chi phí hoàn thiện nội thất (đồ gỗ, thiết bị, décor) dao động 4 – 6 triệu VNĐ/m² tùy mức vật liệu.
Tính theo tổng diện tích sàn 460 m², ngân sách trọn gói vào khoảng 5,2 – 5,8 tỷ VNĐ. Chủ đầu tư nên dự phòng thêm 5 % cho phát sinh (thay đổi vật liệu, điều chỉnh thiết kế). Việc thuê đội thiết kế thi công trọn gói Xây Dựng Thảo Nguyên Xanh giúp kiểm soát tiến độ và tối ưu chi phí, đặc biệt với yêu cầu phức tạp của dòng tropical house.

Kết Luận
Phong cách nhiệt đới không chỉ đơn thuần là kê thêm vài chậu cây; đó là chiến lược thiết kế tổng thể từ hình khối, mặt bằng, cảnh quan đến nội thất. Khi được quy hoạch hợp lý, ngôi tropical house sẽ trở thành “ốc đảo” xanh mát giữa đô thị, mang lại trải nghiệm sống như resort cùng giá trị lâu dài về sức khỏe và tinh thần cho gia chủ.
